- HOME
- uddy
uddyの記事一覧
企業様WORKS
住宅企業様に「収納のプロから見る居心地よい家づくり」について...
企業様WORKS, 住宅支援サービス
企業様WORKS
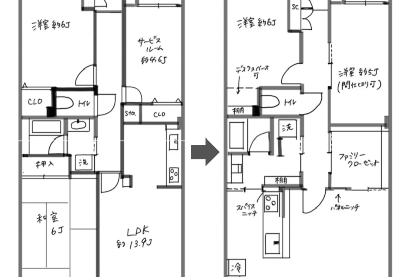
マンションリノベーションをプロデュースしました
企業様WORKS, 新居収納コンサルティング
メディア掲載
ココ研プロデュース!ポーチとバッグインバッグが出来ました
メディア掲載, 心地よい暮らし研究会
メディア掲載
モデルハウスのテレビ撮影に収納のプロとして参加してきました
メディア掲載, 企業様WORKS, 住宅支援サービス
メディア掲載
【掲載のお知らせ】1000万円貯めてる人の愛用品
メディア掲載
プロフィール
開業10周年!これまでの10年、これからの10年
プロフィール, ライフオーガナイズ
ライフオーガナイズ
リアルイベントで感じたこと
ライフオーガナイズ
ライフオーガナイズ
5年ぶりに登壇します!ライフオーガナイザ協会チャリティイベン...
ライフオーガナイズ, 講座・セミナーのご案内
メディア掲載
雑誌掲載のお知らせ
メディア掲載

